Skip to content
Works
Practice
About Us
Team
Careers
Contact
Community
Blog
Press
Awards
7 Lispenard
Search
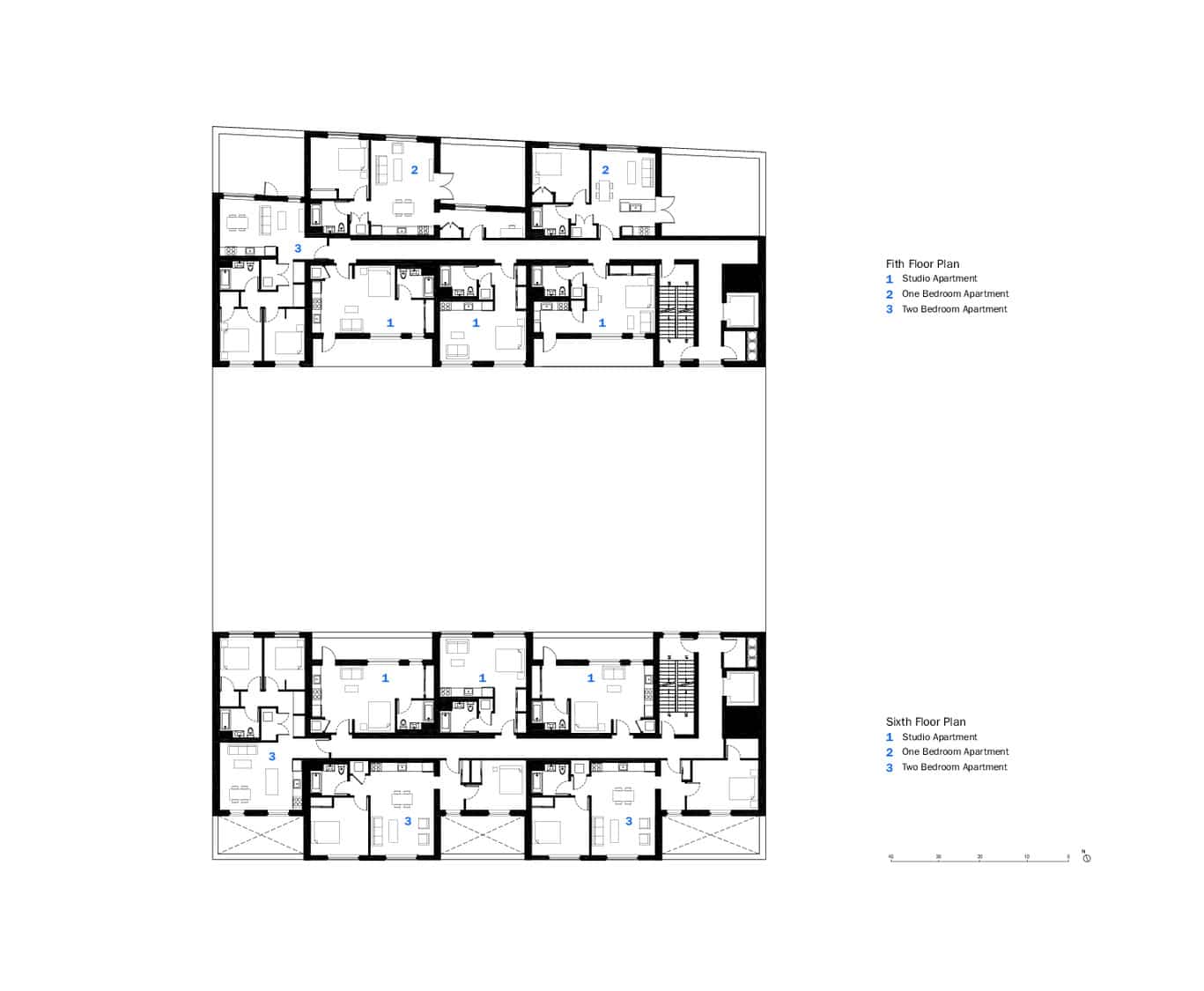
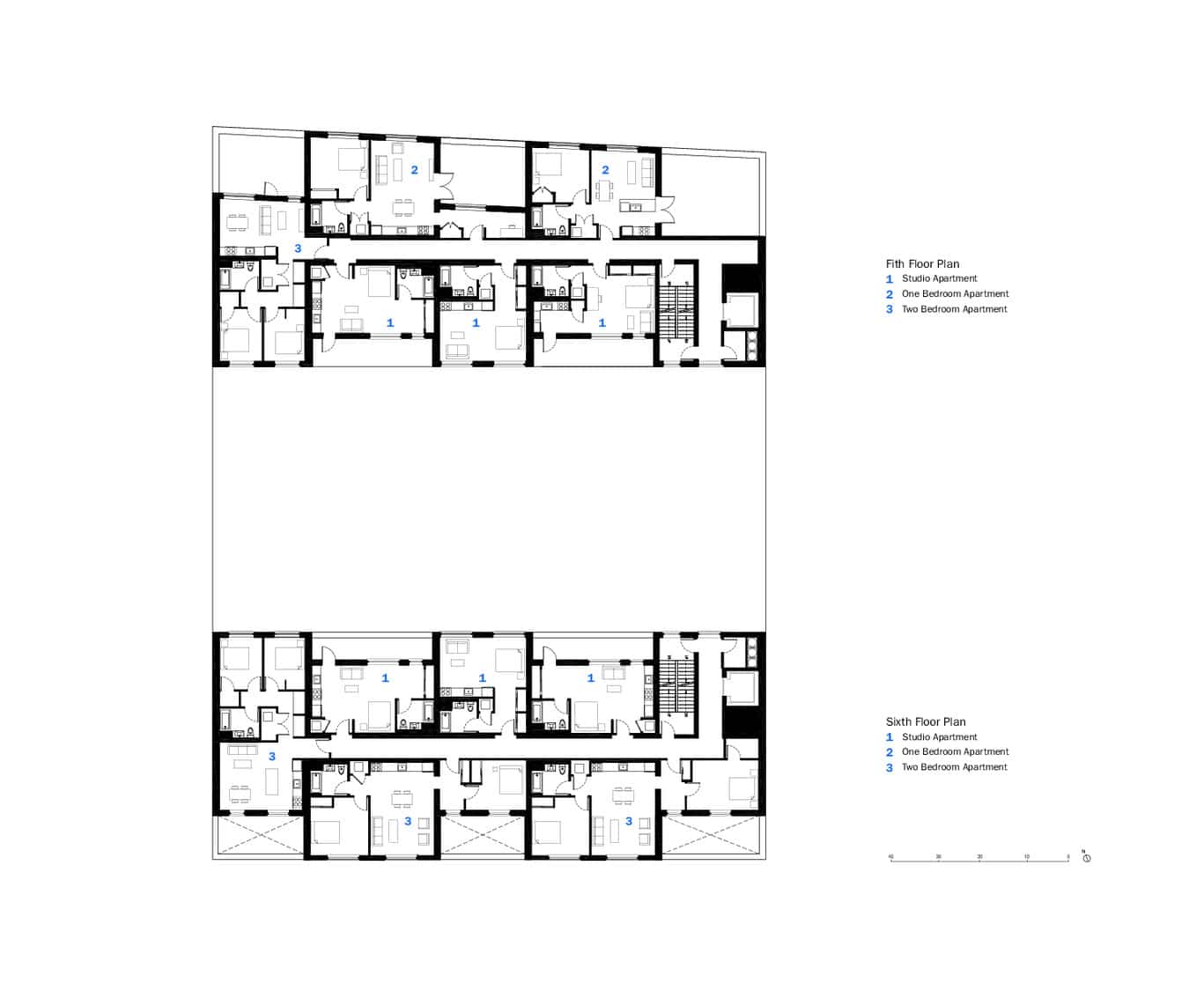
1401 N61 medium
By
Hannah Brausen
|
February 7, 2025
|
Comments Off
on 1401 N61 medium