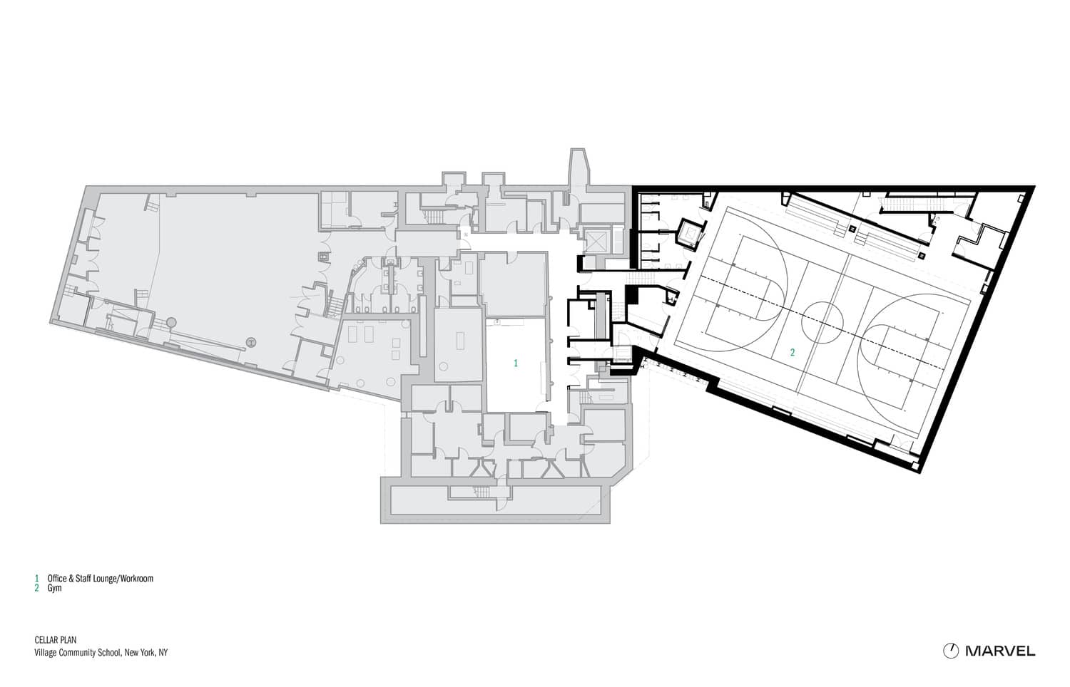
1724 Village Community School Marvel Floor Plan N39 medium By Hannah Brausen | July 8, 2025 | Comments Off on 1724 Village Community School Marvel Floor Plan N39 medium