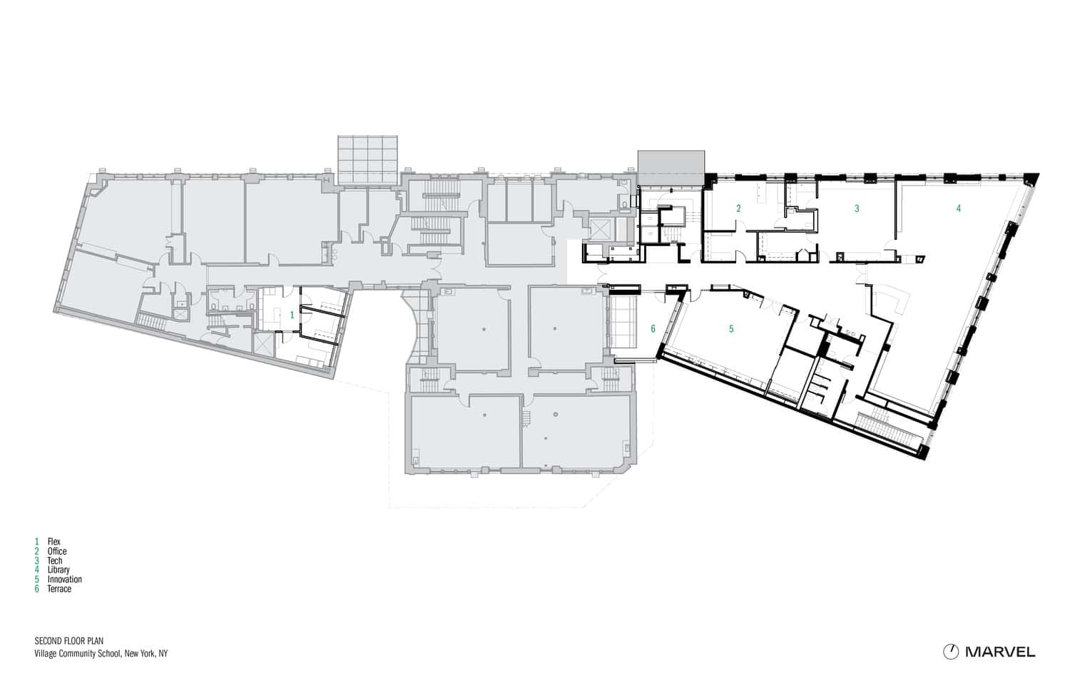
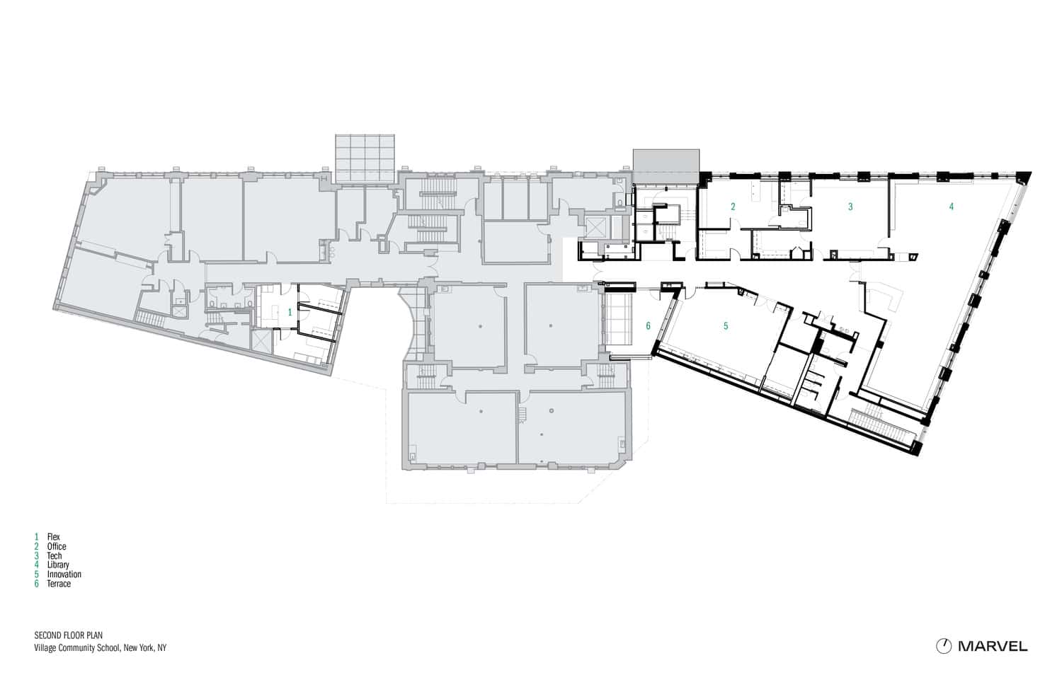
1724 VIllage Community School N41 medium By Alyanna De Vera | December 11, 2025 | Comments Off on 1724 VIllage Community School N41 medium