Village Community School Expansion

A contemporary four-story addition to an 1886 Queen Anne building

The Village Community School expansion creates a cohesive design spanning this West Village block. The new structure balances historic elements and modern architectural details, featuring a playful masonry facade with textured brick and staggered fenestration. A 4-story glass entry and monumental connecting stair showcase Andrew Freeman murals. The expansion incorporates tall, bronze-framed windows and a rooftop play yard concealed by the brick facade. The design connects new corridors to existing ones, using a color scheme for wayfinding and creating welcoming, lively spaces.

© Joshua Simpson
© Joshua Simpson
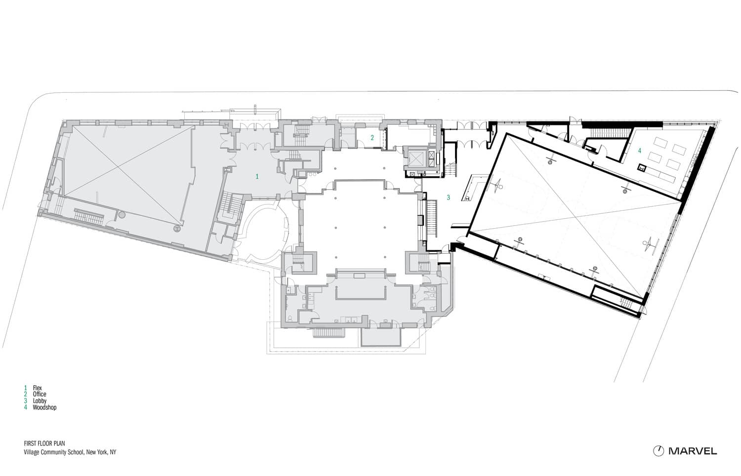
The expansion of the Village Community School relocates the school main entry at the hinge point between the historic and the new with a glass connector.

Extensive programming discussions were held with the school's faculty, staff, families, and other stakeholders to evaluate the functionality of existing spaces.

© Joshua Simpson
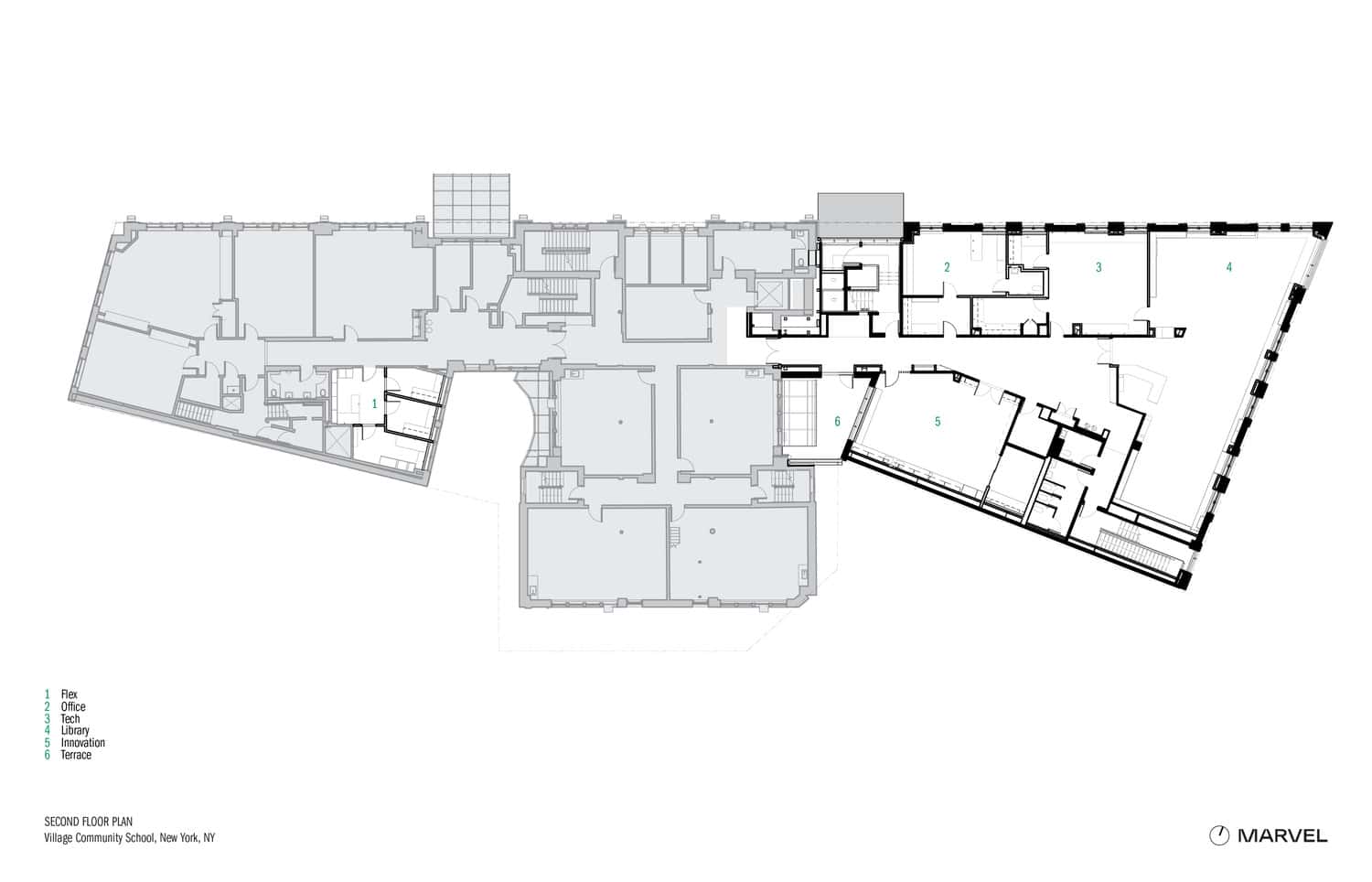
Formerly located in the 1945 garage outbuilding, Village Community School’s woodshop program is integrated into the new expansion volume that occupies the site of the existing play yard and outbuilding. Occupying the prominent, acute corner of West 10th and Greenwich Streets, the woodshop is showcased in a highly visible location.
© Joshua Simpson
© Joshua Simpson
The addition provides the school’s first regulation, middle school gym allowing Village Community School to host basketball and volleyball competitions with local leagues.
The library offers a myriad of seating types, formal and informal, in a rainbow of color.

Integrated millwork benches allow the sun-filled corner of the library to be occupied. Books line the remaining perimeter of the space, leaving the central floor space clear for reading and gathering.

© Joshua Simpson // © Marvel
© Joshua Simpson
The masonry façade matches the scale, massing, pier structure, and materiality of the original building but with additional depth. It has a playful façade with textured brick details and staggered yet gridded fenestration.
© Marvel
© Joshua Simpson
Numerous solutions for high-depth brickwork using irregular, molded, historic brick were developed in parallel to attain the texture and character which gives life to the building and unites it with its residential context.
The school is one block east of the Hudson river and located within the Greenwich Village Historic District Extension, designated by Landmarks in 2006.
© Joshua Simpson
Together with a 2003 expansion to the west, the Village Community School expansion bookends the original Queen Anne building.

A contemporary four-story volume addition to an 1886 Queen Anne building.

The Village Community School expansion creates a cohesive design spanning the West 10th Street block. The new structure balances historic elements and modern architectural details, featuring a playful masonry façade, textured brick, and staggered fenestration. A 4-story glass entry and monumental connecting stair showcase Andrew Freeman murals. The expansion incorporates tall windows, bronze-framed windows, and a rooftop play yard concealed by a brick 'parapet.' The design connects new corridors to existing ones, using a color scheme for wayfinding and creating welcoming, lively spaces.

1724 VIllage Community School Joshua Simpson N21 medium
© Joshua Simpson
Bright finishes and upholstery are used to highlight furniture and niches in the library and corridors. The library offers a myriad of seating types, formal and informal, in a rainbow of color.
1724 VIllage Community School Joshua Simpson N27 medium
© Joshua Simpson
The expansion of the Village Community School relocates the school main entry at the hinge point between the historic and the new with a glass connector.

Extensive programming discussions were held with the school's stakeholders, faculty, and students to evaluate the functionality of existing spaces. During in-person workshops, each VCS faculty member completed a web diagram prioritizing programmatic adjacencies. This allowed the design to accommodate critical adjacencies while creating layouts that maximized the efficiency of the site.

1724 VIllage Community School Joshua Simpson N23 medium
© Joshua Simpson
Formerly located in the 1945 garage outbuilding, Village Community School’s woodshop program is integrated into the new expansion volume that occupies the site of the existing play yard and outbuilding. Occupying the prominent, acute corner of West 10th and Greenwich Streets, the woodshop is showcased in a highly visible location. The millwork design clearly displays tools and supplies, encouraging students to explore their curiosity.
1724 VIllage Community School Joshua Simpson N29 medium
© Joshua Simpson
The addition provides the school’s first regulation, middle school gym allowing Village Community School to host basketball and volleyball competitions with local leagues.
1724 VIllage Community School Joshua Simpson N25 medium
© Joshua Simpson
The library offers a myriad of seating types, formal and informal, in a rainbow of color.

Built-in millwork allows the corner to be occupied and pushes books to the perimeter, clearing central floor space for gathering and reading.

1724 VIllage Community School Joshua Simpson N54 medium
© Joshua Simpson // © Marvel
1724 VIllage Community School Joshua Simpson N30 medium
© Joshua Simpson
The masonry façade matches the scale, massing, pier structure, and materiality of the original building, but with added depth. It has a playful façade with textured brick details and staggered yet gridded fenestration.
1724 VIllage Community School N32 medium
© Marvel
All classrooms and perimeter offices receive tall punched windows, and three large, stacked, bronze-framed windows highlight the library, science suite, and Sky Yard at the public West 10th/Greenwich Street corner. Numerous solutions for high-depth brickwork using irregular, molded, historic brick were developed in parallel to attain the texture and character which gives life to the building and unites it with its residential context.
1724 VIllage Community School Joshua Simpson N17 medium
© Joshua Simpson
The school is one block east of the Hudson river and located within the Greenwich Village Historic District Extension, designated by Landmarks in 2006.
1724 VIllage Community School Joshua Simpson N33 medium
© Joshua Simpson
Together with a 2003 expansion to the west, the Village Community School expansion bookends the original Queen Anne building.

Village Community School Expansion

A contemporary four-story addition to an 1886 Queen Anne building

The Village Community School expansion creates a cohesive design spanning this West Village block. The new structure balances historic elements and modern architectural details, featuring a playful masonry facade with textured brick and staggered fenestration. A 4-story glass entry and monumental connecting stair showcase Andrew Freeman murals. The expansion incorporates tall, bronze-framed windows and a rooftop play yard concealed by the brick facade. The design connects new corridors to existing ones, using a color scheme for wayfinding and creating welcoming, lively spaces.

© Joshua Simpson
© Joshua Simpson
The expansion of the Village Community School relocates the school main entry at the hinge point between the historic and the new with a glass connector.

Extensive programming discussions were held with the school's faculty, staff, families, and other stakeholders to evaluate the functionality of existing spaces.

© Joshua Simpson
Formerly located in the 1945 garage outbuilding, Village Community School’s woodshop program is integrated into the new expansion volume that occupies the site of the existing play yard and outbuilding. Occupying the prominent, acute corner of West 10th and Greenwich Streets, the woodshop is showcased in a highly visible location.
© Joshua Simpson
© Joshua Simpson
The addition provides the school’s first regulation, middle school gym allowing Village Community School to host basketball and volleyball competitions with local leagues.
The library offers a myriad of seating types, formal and informal, in a rainbow of color.

Integrated millwork benches allow the sun-filled corner of the library to be occupied. Books line the remaining perimeter of the space, leaving the central floor space clear for reading and gathering.

© Joshua Simpson // © Marvel
© Joshua Simpson
The masonry façade matches the scale, massing, pier structure, and materiality of the original building but with additional depth. It has a playful façade with textured brick details and staggered yet gridded fenestration.
© Marvel
© Joshua Simpson
Numerous solutions for high-depth brickwork using irregular, molded, historic brick were developed in parallel to attain the texture and character which gives life to the building and unites it with its residential context.
The school is one block east of the Hudson river and located within the Greenwich Village Historic District Extension, designated by Landmarks in 2006.
© Joshua Simpson
Together with a 2003 expansion to the west, the Village Community School expansion bookends the original Queen Anne building.

A contemporary four-story volume addition to an 1886 Queen Anne building.

The Village Community School expansion creates a cohesive design spanning the West 10th Street block. The new structure balances historic elements and modern architectural details, featuring a playful masonry façade, textured brick, and staggered fenestration. A 4-story glass entry and monumental connecting stair showcase Andrew Freeman murals. The expansion incorporates tall windows, bronze-framed windows, and a rooftop play yard concealed by a brick 'parapet.' The design connects new corridors to existing ones, using a color scheme for wayfinding and creating welcoming, lively spaces.

1724 VIllage Community School Joshua Simpson N21 medium
© Joshua Simpson
Bright finishes and upholstery are used to highlight furniture and niches in the library and corridors. The library offers a myriad of seating types, formal and informal, in a rainbow of color.
1724 VIllage Community School Joshua Simpson N27 medium
© Joshua Simpson
The expansion of the Village Community School relocates the school main entry at the hinge point between the historic and the new with a glass connector.

Extensive programming discussions were held with the school's stakeholders, faculty, and students to evaluate the functionality of existing spaces. During in-person workshops, each VCS faculty member completed a web diagram prioritizing programmatic adjacencies. This allowed the design to accommodate critical adjacencies while creating layouts that maximized the efficiency of the site.

1724 VIllage Community School Joshua Simpson N23 medium
© Joshua Simpson
Formerly located in the 1945 garage outbuilding, Village Community School’s woodshop program is integrated into the new expansion volume that occupies the site of the existing play yard and outbuilding. Occupying the prominent, acute corner of West 10th and Greenwich Streets, the woodshop is showcased in a highly visible location. The millwork design clearly displays tools and supplies, encouraging students to explore their curiosity.
1724 VIllage Community School Joshua Simpson N29 medium
© Joshua Simpson
The addition provides the school’s first regulation, middle school gym allowing Village Community School to host basketball and volleyball competitions with local leagues.
1724 VIllage Community School Joshua Simpson N25 medium
© Joshua Simpson
The library offers a myriad of seating types, formal and informal, in a rainbow of color.

Built-in millwork allows the corner to be occupied and pushes books to the perimeter, clearing central floor space for gathering and reading.

1724 VIllage Community School Joshua Simpson N54 medium
© Joshua Simpson // © Marvel
1724 VIllage Community School Joshua Simpson N30 medium
© Joshua Simpson
The masonry façade matches the scale, massing, pier structure, and materiality of the original building, but with added depth. It has a playful façade with textured brick details and staggered yet gridded fenestration.
1724 VIllage Community School N32 medium
© Marvel
All classrooms and perimeter offices receive tall punched windows, and three large, stacked, bronze-framed windows highlight the library, science suite, and Sky Yard at the public West 10th/Greenwich Street corner. Numerous solutions for high-depth brickwork using irregular, molded, historic brick were developed in parallel to attain the texture and character which gives life to the building and unites it with its residential context.
1724 VIllage Community School Joshua Simpson N17 medium
© Joshua Simpson
The school is one block east of the Hudson river and located within the Greenwich Village Historic District Extension, designated by Landmarks in 2006.
1724 VIllage Community School Joshua Simpson N33 medium
© Joshua Simpson
Together with a 2003 expansion to the west, the Village Community School expansion bookends the original Queen Anne building.

Village Community School Expansion

A contemporary four-story addition to an 1886 Queen Anne building

The Village Community School expansion creates a cohesive design spanning this West Village block. The new structure balances historic elements and modern architectural details, featuring a playful masonry facade with textured brick and staggered fenestration. A 4-story glass entry and monumental connecting stair showcase Andrew Freeman murals. The expansion incorporates tall, bronze-framed windows and a rooftop play yard concealed by the brick facade. The design connects new corridors to existing ones, using a color scheme for wayfinding and creating welcoming, lively spaces.

© Joshua Simpson
© Joshua Simpson
The expansion of the Village Community School relocates the school main entry at the hinge point between the historic and the new with a glass connector.

Extensive programming discussions were held with the school's faculty, staff, families, and other stakeholders to evaluate the functionality of existing spaces.

© Joshua Simpson
Formerly located in the 1945 garage outbuilding, Village Community School’s woodshop program is integrated into the new expansion volume that occupies the site of the existing play yard and outbuilding. Occupying the prominent, acute corner of West 10th and Greenwich Streets, the woodshop is showcased in a highly visible location.
© Joshua Simpson
© Joshua Simpson
The addition provides the school’s first regulation, middle school gym allowing Village Community School to host basketball and volleyball competitions with local leagues.
The library offers a myriad of seating types, formal and informal, in a rainbow of color.

Integrated millwork benches allow the sun-filled corner of the library to be occupied. Books line the remaining perimeter of the space, leaving the central floor space clear for reading and gathering.

© Joshua Simpson // © Marvel
© Joshua Simpson
The masonry façade matches the scale, massing, pier structure, and materiality of the original building but with additional depth. It has a playful façade with textured brick details and staggered yet gridded fenestration.
© Marvel
© Joshua Simpson
Numerous solutions for high-depth brickwork using irregular, molded, historic brick were developed in parallel to attain the texture and character which gives life to the building and unites it with its residential context.
The school is one block east of the Hudson river and located within the Greenwich Village Historic District Extension, designated by Landmarks in 2006.
© Joshua Simpson
Together with a 2003 expansion to the west, the Village Community School expansion bookends the original Queen Anne building.

A contemporary four-story volume addition to an 1886 Queen Anne building.

The Village Community School expansion creates a cohesive design spanning the West 10th Street block. The new structure balances historic elements and modern architectural details, featuring a playful masonry façade, textured brick, and staggered fenestration. A 4-story glass entry and monumental connecting stair showcase Andrew Freeman murals. The expansion incorporates tall windows, bronze-framed windows, and a rooftop play yard concealed by a brick 'parapet.' The design connects new corridors to existing ones, using a color scheme for wayfinding and creating welcoming, lively spaces.

1724 VIllage Community School Joshua Simpson N21 medium
© Joshua Simpson
Bright finishes and upholstery are used to highlight furniture and niches in the library and corridors. The library offers a myriad of seating types, formal and informal, in a rainbow of color.
1724 VIllage Community School Joshua Simpson N27 medium
© Joshua Simpson
The expansion of the Village Community School relocates the school main entry at the hinge point between the historic and the new with a glass connector.

Extensive programming discussions were held with the school's stakeholders, faculty, and students to evaluate the functionality of existing spaces. During in-person workshops, each VCS faculty member completed a web diagram prioritizing programmatic adjacencies. This allowed the design to accommodate critical adjacencies while creating layouts that maximized the efficiency of the site.

1724 VIllage Community School Joshua Simpson N23 medium
© Joshua Simpson
Formerly located in the 1945 garage outbuilding, Village Community School’s woodshop program is integrated into the new expansion volume that occupies the site of the existing play yard and outbuilding. Occupying the prominent, acute corner of West 10th and Greenwich Streets, the woodshop is showcased in a highly visible location. The millwork design clearly displays tools and supplies, encouraging students to explore their curiosity.
1724 VIllage Community School Joshua Simpson N29 medium
© Joshua Simpson
The addition provides the school’s first regulation, middle school gym allowing Village Community School to host basketball and volleyball competitions with local leagues.
1724 VIllage Community School Joshua Simpson N25 medium
© Joshua Simpson
The library offers a myriad of seating types, formal and informal, in a rainbow of color.

Built-in millwork allows the corner to be occupied and pushes books to the perimeter, clearing central floor space for gathering and reading.

1724 VIllage Community School Joshua Simpson N54 medium
© Joshua Simpson // © Marvel
1724 VIllage Community School Joshua Simpson N30 medium
© Joshua Simpson
The masonry façade matches the scale, massing, pier structure, and materiality of the original building, but with added depth. It has a playful façade with textured brick details and staggered yet gridded fenestration.
1724 VIllage Community School N32 medium
© Marvel
All classrooms and perimeter offices receive tall punched windows, and three large, stacked, bronze-framed windows highlight the library, science suite, and Sky Yard at the public West 10th/Greenwich Street corner. Numerous solutions for high-depth brickwork using irregular, molded, historic brick were developed in parallel to attain the texture and character which gives life to the building and unites it with its residential context.
1724 VIllage Community School Joshua Simpson N17 medium
© Joshua Simpson
The school is one block east of the Hudson river and located within the Greenwich Village Historic District Extension, designated by Landmarks in 2006.
1724 VIllage Community School Joshua Simpson N33 medium
© Joshua Simpson
Together with a 2003 expansion to the west, the Village Community School expansion bookends the original Queen Anne building.

Location

New York

Client

Village Community School

Typology

Size

24,700 SF

Marvel Design Team

Jonathan Marvel, Lissa So, Caroline Frantz, Patrick Hamon, Cat Travers

Project Team

Macro Consultants (Owner Representation), Polise Consulting Engineers, D.P.C. (Building Systems), Silman (Structural Engineer), Philip Habib & Associates (Civil Engineer), GeoDesign, Inc. (SOE/Geotech), Shen Milsom & Wilke LLC (IT/AV/SEC), Longman Lindsey (Acoustics), Dot Dash (Lighting Designer), Steven Winter Associates (Accessibility), RWDI (Façade), Higgins Quasebarth & Partners (Historic Preservation), Sheldon Lobel, P.C. (Land Use), Jacobs (Lab Planning), JM Zoning (Code, Zoning, Expediting), Robert Schwartz & Associates (Specification Writer)