The Masters School Library Renovation

A modern academic hub designed to foster social connections.

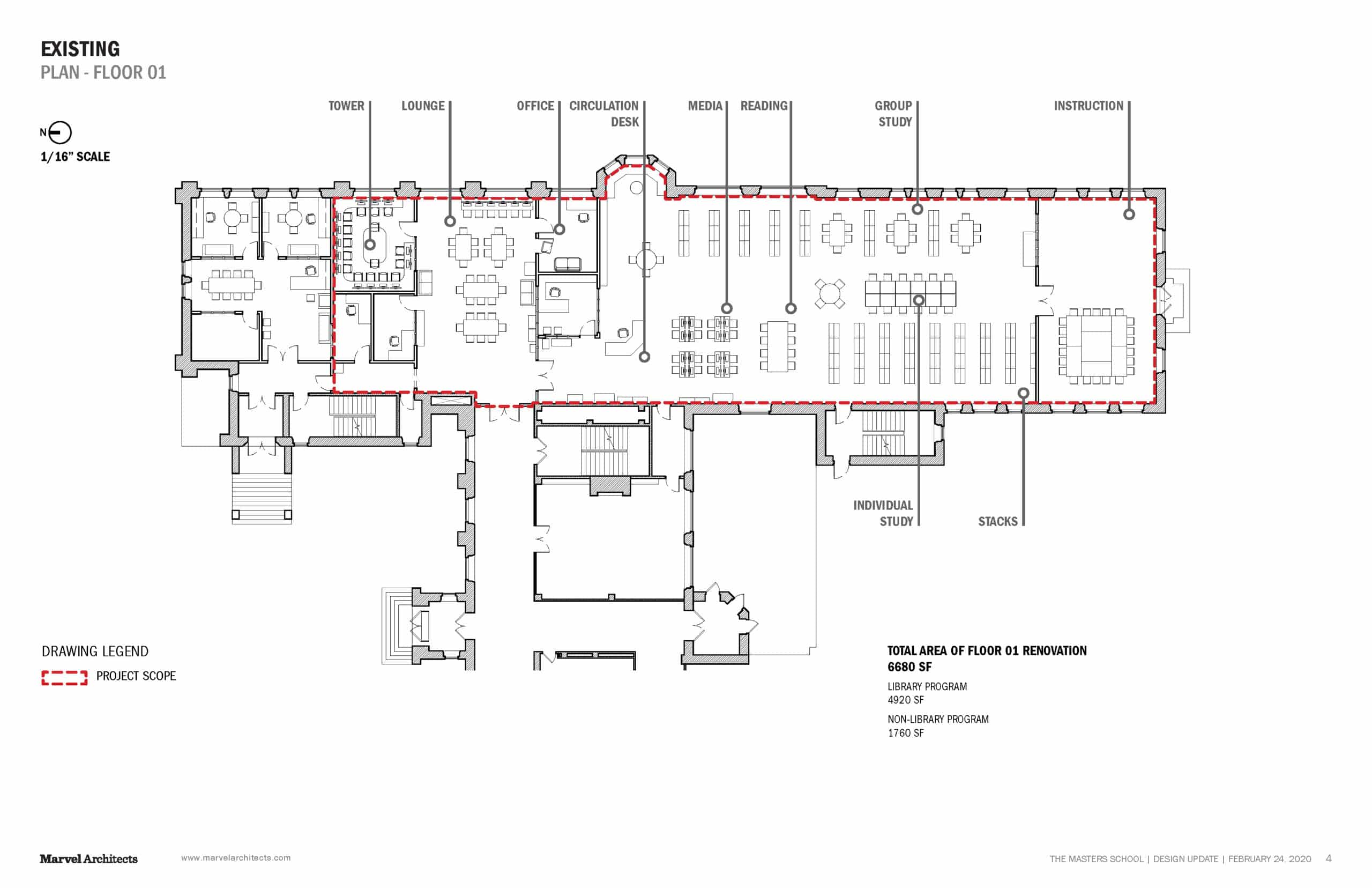
Marvel undertook a comprehensive renovation of The Masters School's main library to introduce versatile study areas, glass-enclosed collaboration suites for acoustic privacy and openness, and custom millwork with full-height bookcases that showcase the school's collection while keeping the space open. The primary design goals included allowing natural lighting to permeate throughout the entire space, reestablishing a traditional reading room setting and promote access and communication between students and librarians for effective research. The project sought to modernize and maximize the library's functionality and user experience.

Semi-recessed seating provides space for small group study, gathering and quiet recreation away from the private reading and study areas in other parts of the library. © David Sundberg/Esto
© David Sundberg/Esto
Renovations transformed the library into a light-filled, academic hub with flexible areas for group work, quiet study, and showcasing the collection.
1940 Masters Library Renovation N16 1940 Masters Library Renovation Existing Proposed Plan N15

A core of enclosed study rooms anchor the middle of the library, allowing natural light to permeate around to all parts of the library.

Centrally located, glass-enclosed collaboration suites provide visual connectivity and allow light transfer, but are acoustically separated from the rest of the library study spaces. Each room is outfit with technology and accessories to support student collaboration. © David Sundberg/Esto
Centrally located, glass-enclosed collaboration suites provide visual connectivity and allow light transfer, but are acoustically separated from the rest of the library study spaces. Each room is outfit with technology and accessories to support student collaboration.
© David Sundberg/Esto
© David Sundberg/Esto
Centrally located, glass enclosed Collaboration suites provide visual connectivity and allow light transfer to the rest of the space, but are acoustically separated from the rest of the library study spaces. Each room is outfit with technology and accessories to support student collaboration.
A reading room setting compliments the varied seating options available in the library. Natural light floods the space making it a popular destination for students seeking a quiet but open study location.

Masters School Library Renovation ushered in a modern era, shaping the library into an academic hub that also encourages social connections, celebrates the collection and promotes individual and group study.

The team conducted a programming survey, enabling the design to address the users’ most critical program components. © Marvel
© David Sundberg/Esto
© David Sundberg/Esto
Computer work stations ring the perimeter of the student newspaper workrooms. Ample pin-up and laydown spaces facilitate team review of spreads for the upcoming issues.
© David Sundberg/Esto
© David Sundberg/Esto
Natural light illuminates intimate window seating and the adjacent glass enclosed collaboration suites.
 Semi-recessed seating provides space for small group study, gathering and quiet recreation away from the private reading and study areas in other parts of the library.
© David Sundberg/Esto
Custom millwork and full-height bookcases line the perimeter to highlight the school's collection while maintaining an open feel.

A modern academic hub designed to foster social connections.

Marvel undertook a comprehensive renovation of The Masters School's main library to introduce versatile study areas, glass-enclosed collaboration suites for acoustic privacy and openness, and custom millwork with full-height bookcases that showcase the school's collection while keeping the space open. The primary design goals included allowing natural lighting to permeate throughout the entire space, reestablishing a traditional reading room setting and promote access and communication between students and librarians for effective research. The project sought to modernize and maximize the library's functionality and user experience.

2021DS04 Masters School Library
Semi-recessed seating provides space for small group study, gathering and quiet recreation away from the private reading and study areas in other parts of the library.
2021DS04 Masters School Library
Renovations transformed the library into a light-filled, academic hub with flexible areas for group work, quiet study, and showcasing the collection.
1940 Masters Library Renovation N16 1940 Masters Library Renovation Existing Proposed Plan N15

A core of enclosed study rooms anchor the middle of the library, allowing natural light to permeate around to all parts of the library.

2021DS04 Masters School Library
2021DS04 Masters School Library
Centrally located, glass enclosed Collaboration suites provide visual connectivity and allow light transfer to the rest of the space, but are acoustically separated from the rest of the library study spaces. Each room is outfit with technology and accessories to support student collaboration.
2021DS04 Masters School Library
A reading room setting compliments the varied seating options available in the library. Natural light floods the space making it a popular destination for students seeking a quiet but open study location.
1940 Masters Library Renovation David Sundberg N17 medium
The team conducted a programming survey, enabling the design to address the users’ most critical program components. © Marvel

Masters School Library Renovation ushered in a modern era, shaping the library into an academic hub that also encourages social connections, celebrates the collection and promotes individual and group study.

2021DS04 Masters School Library
2021DS04 Masters School Library
Computer work stations ring the perimeter of the student newspaper workrooms. Ample pin-up and laydown spaces facilitate team review of spreads for the upcoming issues.
2021DS04 Masters School Library
Natural light illuminates intimate window seating and the adjacent glass enclosed collaboration suites.
2021DS04 Masters School Library
 Semi-recessed seating provides space for small group study, gathering and quiet recreation away from the private reading and study areas in other parts of the library.

The Masters School Library Renovation

A modern academic hub designed to foster social connections.

Marvel undertook a comprehensive renovation of The Masters School's main library to introduce versatile study areas, glass-enclosed collaboration suites for acoustic privacy and openness, and custom millwork with full-height bookcases that showcase the school's collection while keeping the space open. The primary design goals included allowing natural lighting to permeate throughout the entire space, reestablishing a traditional reading room setting and promote access and communication between students and librarians for effective research. The project sought to modernize and maximize the library's functionality and user experience.

Semi-recessed seating provides space for small group study, gathering and quiet recreation away from the private reading and study areas in other parts of the library. © David Sundberg/Esto
© David Sundberg/Esto
Renovations transformed the library into a light-filled, academic hub with flexible areas for group work, quiet study, and showcasing the collection.
1940 Masters Library Renovation N16 1940 Masters Library Renovation Existing Proposed Plan N15

A core of enclosed study rooms anchor the middle of the library, allowing natural light to permeate around to all parts of the library.

Centrally located, glass-enclosed collaboration suites provide visual connectivity and allow light transfer, but are acoustically separated from the rest of the library study spaces. Each room is outfit with technology and accessories to support student collaboration. © David Sundberg/Esto
Centrally located, glass-enclosed collaboration suites provide visual connectivity and allow light transfer, but are acoustically separated from the rest of the library study spaces. Each room is outfit with technology and accessories to support student collaboration.
© David Sundberg/Esto
© David Sundberg/Esto
Centrally located, glass enclosed Collaboration suites provide visual connectivity and allow light transfer to the rest of the space, but are acoustically separated from the rest of the library study spaces. Each room is outfit with technology and accessories to support student collaboration.
A reading room setting compliments the varied seating options available in the library. Natural light floods the space making it a popular destination for students seeking a quiet but open study location.

Masters School Library Renovation ushered in a modern era, shaping the library into an academic hub that also encourages social connections, celebrates the collection and promotes individual and group study.

The team conducted a programming survey, enabling the design to address the users’ most critical program components. © Marvel
© David Sundberg/Esto
© David Sundberg/Esto
Computer work stations ring the perimeter of the student newspaper workrooms. Ample pin-up and laydown spaces facilitate team review of spreads for the upcoming issues.
© David Sundberg/Esto
© David Sundberg/Esto
Natural light illuminates intimate window seating and the adjacent glass enclosed collaboration suites.
 Semi-recessed seating provides space for small group study, gathering and quiet recreation away from the private reading and study areas in other parts of the library.
© David Sundberg/Esto
Custom millwork and full-height bookcases line the perimeter to highlight the school's collection while maintaining an open feel.

A modern academic hub designed to foster social connections.

Marvel undertook a comprehensive renovation of The Masters School's main library to introduce versatile study areas, glass-enclosed collaboration suites for acoustic privacy and openness, and custom millwork with full-height bookcases that showcase the school's collection while keeping the space open. The primary design goals included allowing natural lighting to permeate throughout the entire space, reestablishing a traditional reading room setting and promote access and communication between students and librarians for effective research. The project sought to modernize and maximize the library's functionality and user experience.

2021DS04 Masters School Library
Semi-recessed seating provides space for small group study, gathering and quiet recreation away from the private reading and study areas in other parts of the library.
2021DS04 Masters School Library
Renovations transformed the library into a light-filled, academic hub with flexible areas for group work, quiet study, and showcasing the collection.
1940 Masters Library Renovation N16 1940 Masters Library Renovation Existing Proposed Plan N15

A core of enclosed study rooms anchor the middle of the library, allowing natural light to permeate around to all parts of the library.

2021DS04 Masters School Library
2021DS04 Masters School Library
Centrally located, glass enclosed Collaboration suites provide visual connectivity and allow light transfer to the rest of the space, but are acoustically separated from the rest of the library study spaces. Each room is outfit with technology and accessories to support student collaboration.
2021DS04 Masters School Library
A reading room setting compliments the varied seating options available in the library. Natural light floods the space making it a popular destination for students seeking a quiet but open study location.
1940 Masters Library Renovation David Sundberg N17 medium
The team conducted a programming survey, enabling the design to address the users’ most critical program components. © Marvel

Masters School Library Renovation ushered in a modern era, shaping the library into an academic hub that also encourages social connections, celebrates the collection and promotes individual and group study.

2021DS04 Masters School Library
2021DS04 Masters School Library
Computer work stations ring the perimeter of the student newspaper workrooms. Ample pin-up and laydown spaces facilitate team review of spreads for the upcoming issues.
2021DS04 Masters School Library
Natural light illuminates intimate window seating and the adjacent glass enclosed collaboration suites.
2021DS04 Masters School Library
 Semi-recessed seating provides space for small group study, gathering and quiet recreation away from the private reading and study areas in other parts of the library.

The Masters School Library Renovation

A modern academic hub designed to foster social connections.

Marvel undertook a comprehensive renovation of The Masters School's main library to introduce versatile study areas, glass-enclosed collaboration suites for acoustic privacy and openness, and custom millwork with full-height bookcases that showcase the school's collection while keeping the space open. The primary design goals included allowing natural lighting to permeate throughout the entire space, reestablishing a traditional reading room setting and promote access and communication between students and librarians for effective research. The project sought to modernize and maximize the library's functionality and user experience.

Semi-recessed seating provides space for small group study, gathering and quiet recreation away from the private reading and study areas in other parts of the library. © David Sundberg/Esto
© David Sundberg/Esto
Renovations transformed the library into a light-filled, academic hub with flexible areas for group work, quiet study, and showcasing the collection.
1940 Masters Library Renovation N16 1940 Masters Library Renovation Existing Proposed Plan N15

A core of enclosed study rooms anchor the middle of the library, allowing natural light to permeate around to all parts of the library.

Centrally located, glass-enclosed collaboration suites provide visual connectivity and allow light transfer, but are acoustically separated from the rest of the library study spaces. Each room is outfit with technology and accessories to support student collaboration. © David Sundberg/Esto
Centrally located, glass-enclosed collaboration suites provide visual connectivity and allow light transfer, but are acoustically separated from the rest of the library study spaces. Each room is outfit with technology and accessories to support student collaboration.
© David Sundberg/Esto
© David Sundberg/Esto
Centrally located, glass enclosed Collaboration suites provide visual connectivity and allow light transfer to the rest of the space, but are acoustically separated from the rest of the library study spaces. Each room is outfit with technology and accessories to support student collaboration.
A reading room setting compliments the varied seating options available in the library. Natural light floods the space making it a popular destination for students seeking a quiet but open study location.

Masters School Library Renovation ushered in a modern era, shaping the library into an academic hub that also encourages social connections, celebrates the collection and promotes individual and group study.

The team conducted a programming survey, enabling the design to address the users’ most critical program components. © Marvel
© David Sundberg/Esto
© David Sundberg/Esto
Computer work stations ring the perimeter of the student newspaper workrooms. Ample pin-up and laydown spaces facilitate team review of spreads for the upcoming issues.
© David Sundberg/Esto
© David Sundberg/Esto
Natural light illuminates intimate window seating and the adjacent glass enclosed collaboration suites.
 Semi-recessed seating provides space for small group study, gathering and quiet recreation away from the private reading and study areas in other parts of the library.
© David Sundberg/Esto
Custom millwork and full-height bookcases line the perimeter to highlight the school's collection while maintaining an open feel.

A modern academic hub designed to foster social connections.

Marvel undertook a comprehensive renovation of The Masters School's main library to introduce versatile study areas, glass-enclosed collaboration suites for acoustic privacy and openness, and custom millwork with full-height bookcases that showcase the school's collection while keeping the space open. The primary design goals included allowing natural lighting to permeate throughout the entire space, reestablishing a traditional reading room setting and promote access and communication between students and librarians for effective research. The project sought to modernize and maximize the library's functionality and user experience.

2021DS04 Masters School Library
Semi-recessed seating provides space for small group study, gathering and quiet recreation away from the private reading and study areas in other parts of the library.
2021DS04 Masters School Library
Renovations transformed the library into a light-filled, academic hub with flexible areas for group work, quiet study, and showcasing the collection.
1940 Masters Library Renovation N16 1940 Masters Library Renovation Existing Proposed Plan N15

A core of enclosed study rooms anchor the middle of the library, allowing natural light to permeate around to all parts of the library.

2021DS04 Masters School Library
2021DS04 Masters School Library
Centrally located, glass enclosed Collaboration suites provide visual connectivity and allow light transfer to the rest of the space, but are acoustically separated from the rest of the library study spaces. Each room is outfit with technology and accessories to support student collaboration.
2021DS04 Masters School Library
A reading room setting compliments the varied seating options available in the library. Natural light floods the space making it a popular destination for students seeking a quiet but open study location.
1940 Masters Library Renovation David Sundberg N17 medium
The team conducted a programming survey, enabling the design to address the users’ most critical program components. © Marvel

Masters School Library Renovation ushered in a modern era, shaping the library into an academic hub that also encourages social connections, celebrates the collection and promotes individual and group study.

2021DS04 Masters School Library
2021DS04 Masters School Library
Computer work stations ring the perimeter of the student newspaper workrooms. Ample pin-up and laydown spaces facilitate team review of spreads for the upcoming issues.
2021DS04 Masters School Library
Natural light illuminates intimate window seating and the adjacent glass enclosed collaboration suites.
2021DS04 Masters School Library
 Semi-recessed seating provides space for small group study, gathering and quiet recreation away from the private reading and study areas in other parts of the library.

Location

Dobbs Ferry, NY

Client

The Masters School

Typology

Size

11,000 SF

Design Team

Jonathan Marvel, Lissa So, Jennifer Olson, Caroline Frantz, Carly Berger, Chit Yee Ng

Consultants

SBI (Agent), Silman (Structural Engineer), Polise (MEP Engineer), Jim Conti (Lighting Designer), The Sextant Group (Acoustical, AV/IT/SEC Consultant), CCI (Code and Accessibility Consultant), Empire (Furniture Supplier), Lane Office-Knoll (Furniture Supplier), Salzmann (Site Surveyor), Inscape (Glazing Consultant), Yorke (Construction Manager)