Residences at Prince Street

Celebrating the building's rich history while offering luxurious, modern accommodations.

Marvel revitalized the landmarked 32 Prince Street in Nolita, NYC, converting the former convent and school into a private townhouse, eight condominium units, and a freestanding glass brick fronted townhouse. The Residences at Prince, once part of Old St. Patrick’s Cathedral Campus, is a NYC Individual Landmark and a Nationally Registered Historic Place. The design highlights the building's original features, blending new materials with historic elements to create unique, modern living spaces. The project features a multi-level inner courtyard with private and communal gardens, providing a serene oasis in the heart of the city. The combination of historic and contemporary design pursues a harmonious balance between past and present.

© Aaron Thompson
© Aaron Thompson
The exterior design maintains the Federal style's simplicity, while the inner courtyard façades are playful and irregular.
© Aaron Thompson
© Aaron Thompson
Spaces interlock with one another— providing for moment when modern and historic facades can meet
In order to create unity between the site’s different residences while connecting them with the facility’s history, fenestration was made to match the old windows, while glass brick was put in as to recall vintage masonry.

The H-shaped footprint was restored, with the western wing becoming a grand 5-story, 8,000 sq ft townhouse and the eastern wing housing seven condominium residences.

© Aaron Thompson
© Aaron Thompson
Historic north facade of the courtyard looking into a unit, displaying 200 years of intervention.
Within units there is a constant interplay of contemporary taste and historic texture.

Fine wide-plank floors and crown molding frame the classicism of the rooms, while old structural beams expose the building’s story and old-world craftsmanship.

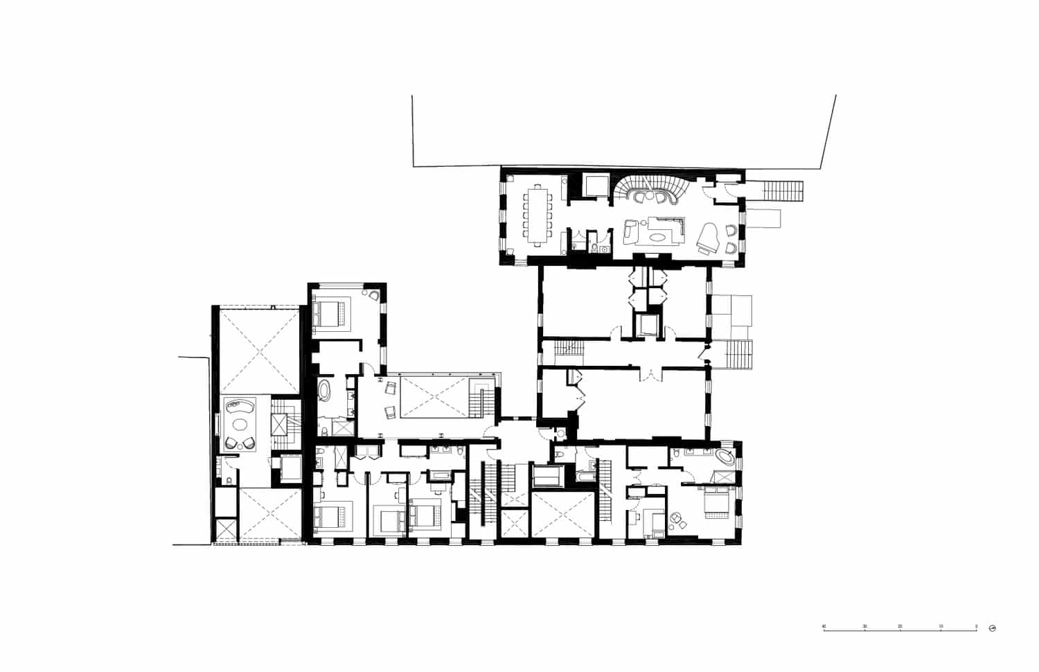
First Floor Plan. © Marvel
© Aaron Thompson
© Daniel Byrne
The former schoolyard has been transformed into a multi-level courtyard with private and communal gardens.
© Aaron Thompson
© Daniel Byrne
A decision was made to peel back the layers and expose the building’s physicality, repairing but not clearing so as to celebrate its age and story.
Street-facing double-hung windows are paired with expansive glass-enclosed living spaces facing the courtyard.
© Aaron Thompson
The historic north wall with 200 years of alterations directly inspired the design of the modern concrete rainscreen.

Celebrating the building's rich history while offering luxurious, modern accommodations.

Marvel revitalized the landmarked 32 Prince Street in Nolita, NYC, converting the former convent and school into a private townhouse, eight condominium units, and a freestanding glass brick fronted townhouse. The Residences at Prince, once part of Old St. Patrick’s Cathedral Campus, is a NYC Individual Landmark and a Nationally Registered Historic Place. The design highlights the building's original features, blending new materials with historic elements to create unique, modern living spaces. The project features a multi-level inner courtyard with private and communal gardens, providing a serene oasis in the heart of the city. The combination of historic and contemporary design pursues a harmonious balance between past and present.

1303 Residences at Prince Street Aaron Thompson N59 medium
© Aaron Thompson
Blackened Steel Plate stair with treads repurposed from the existing timbers in the building, set against the 1826 masonry wall.
1303 Residences at Prince Street Aaron Thompson N73 medium
© Aaron Thompson
The exterior design maintains the Federal style's simplicity, while the inner courtyard façades are playful and irregular.
1303 Residences at Prince Street Aaron Thompson N64 medium
© Aaron Thompson
Spaces interlock with one another— providing for moment when modern and historic facades can meet
1303 Residences at Prince Street Aaron Thompson N74 medium
© Aaron Thompson
In order to create unity between the site’s different residences while connecting them with the facility’s history, fenestration was made to match the old windows, while glass brick was put in as to recall vintage masonry.

The H-shaped footprint was restored, with the western wing becoming a grand 5-story, 8,000 sq ft townhouse and the eastern wing housing seven condominium residences.

1303 Residences at Prince Street Aaron Thompson N68 medium
© Aaron Thompson
Historic north facade of the courtyard looking into a unit, displaying 200 years of intervention.
1303 Residences at Prince Street Aaron Thompson N52 medium
© Aaron Thompson
Within units there is a constant interplay of contemporary taste and historic texture.
1303 Residences at Prince Street Aaron Thompson N56 medium
© Aaron Thompson

Fine wide-plank floors and crown molding frame the classicism of the rooms, while old structural beams expose the building’s story and old-world craftsmanship.

1303 Residences at Prince Street N7 medium
First Floor Plan. © Marvel
1303 Residences at Prince Street Daniel Byrne N83 medium
© Daniel Byrne
The former schoolyard has been transformed into a multi-level courtyard with private and communal gardens.
1303 Residences at Prince Street Aaron Thompson N46 medium
© Aaron Thompson
A decision was made to peel back the layers and expose the building’s physicality, repairing but not clearing so as to celebrate its age and story.
1303 Residences at Prince Street Daniel Byrne N85 medium
© Daniel Byrne
Street-facing double-hung windows are paired with expansive glass-enclosed living spaces facing the courtyard.
1303 Residences at Prince Street Aaron Thompson N49 medium
© Aaron Thompson
The historic north wall with 200 years of alterations directly inspired the design of the modern concrete rainscreen.

Residences at Prince Street

Celebrating the building's rich history while offering luxurious, modern accommodations.

Marvel revitalized the landmarked 32 Prince Street in Nolita, NYC, converting the former convent and school into a private townhouse, eight condominium units, and a freestanding glass brick fronted townhouse. The Residences at Prince, once part of Old St. Patrick’s Cathedral Campus, is a NYC Individual Landmark and a Nationally Registered Historic Place. The design highlights the building's original features, blending new materials with historic elements to create unique, modern living spaces. The project features a multi-level inner courtyard with private and communal gardens, providing a serene oasis in the heart of the city. The combination of historic and contemporary design pursues a harmonious balance between past and present.

© Aaron Thompson
© Aaron Thompson
The exterior design maintains the Federal style's simplicity, while the inner courtyard façades are playful and irregular.
© Aaron Thompson
© Aaron Thompson
Spaces interlock with one another— providing for moment when modern and historic facades can meet
In order to create unity between the site’s different residences while connecting them with the facility’s history, fenestration was made to match the old windows, while glass brick was put in as to recall vintage masonry.

The H-shaped footprint was restored, with the western wing becoming a grand 5-story, 8,000 sq ft townhouse and the eastern wing housing seven condominium residences.

© Aaron Thompson
© Aaron Thompson
Historic north facade of the courtyard looking into a unit, displaying 200 years of intervention.
Within units there is a constant interplay of contemporary taste and historic texture.

Fine wide-plank floors and crown molding frame the classicism of the rooms, while old structural beams expose the building’s story and old-world craftsmanship.

First Floor Plan. © Marvel
© Aaron Thompson
© Daniel Byrne
The former schoolyard has been transformed into a multi-level courtyard with private and communal gardens.
© Aaron Thompson
© Daniel Byrne
A decision was made to peel back the layers and expose the building’s physicality, repairing but not clearing so as to celebrate its age and story.
Street-facing double-hung windows are paired with expansive glass-enclosed living spaces facing the courtyard.
© Aaron Thompson
The historic north wall with 200 years of alterations directly inspired the design of the modern concrete rainscreen.

Celebrating the building's rich history while offering luxurious, modern accommodations.

Marvel revitalized the landmarked 32 Prince Street in Nolita, NYC, converting the former convent and school into a private townhouse, eight condominium units, and a freestanding glass brick fronted townhouse. The Residences at Prince, once part of Old St. Patrick’s Cathedral Campus, is a NYC Individual Landmark and a Nationally Registered Historic Place. The design highlights the building's original features, blending new materials with historic elements to create unique, modern living spaces. The project features a multi-level inner courtyard with private and communal gardens, providing a serene oasis in the heart of the city. The combination of historic and contemporary design pursues a harmonious balance between past and present.

1303 Residences at Prince Street Aaron Thompson N59 medium
© Aaron Thompson
Blackened Steel Plate stair with treads repurposed from the existing timbers in the building, set against the 1826 masonry wall.
1303 Residences at Prince Street Aaron Thompson N73 medium
© Aaron Thompson
The exterior design maintains the Federal style's simplicity, while the inner courtyard façades are playful and irregular.
1303 Residences at Prince Street Aaron Thompson N64 medium
© Aaron Thompson
Spaces interlock with one another— providing for moment when modern and historic facades can meet
1303 Residences at Prince Street Aaron Thompson N74 medium
© Aaron Thompson
In order to create unity between the site’s different residences while connecting them with the facility’s history, fenestration was made to match the old windows, while glass brick was put in as to recall vintage masonry.

The H-shaped footprint was restored, with the western wing becoming a grand 5-story, 8,000 sq ft townhouse and the eastern wing housing seven condominium residences.

1303 Residences at Prince Street Aaron Thompson N68 medium
© Aaron Thompson
Historic north facade of the courtyard looking into a unit, displaying 200 years of intervention.
1303 Residences at Prince Street Aaron Thompson N52 medium
© Aaron Thompson
Within units there is a constant interplay of contemporary taste and historic texture.
1303 Residences at Prince Street Aaron Thompson N56 medium
© Aaron Thompson

Fine wide-plank floors and crown molding frame the classicism of the rooms, while old structural beams expose the building’s story and old-world craftsmanship.

1303 Residences at Prince Street N7 medium
First Floor Plan. © Marvel
1303 Residences at Prince Street Daniel Byrne N83 medium
© Daniel Byrne
The former schoolyard has been transformed into a multi-level courtyard with private and communal gardens.
1303 Residences at Prince Street Aaron Thompson N46 medium
© Aaron Thompson
A decision was made to peel back the layers and expose the building’s physicality, repairing but not clearing so as to celebrate its age and story.
1303 Residences at Prince Street Daniel Byrne N85 medium
© Daniel Byrne
Street-facing double-hung windows are paired with expansive glass-enclosed living spaces facing the courtyard.
1303 Residences at Prince Street Aaron Thompson N49 medium
© Aaron Thompson
The historic north wall with 200 years of alterations directly inspired the design of the modern concrete rainscreen.

Residences at Prince Street

Celebrating the building's rich history while offering luxurious, modern accommodations.

Marvel revitalized the landmarked 32 Prince Street in Nolita, NYC, converting the former convent and school into a private townhouse, eight condominium units, and a freestanding glass brick fronted townhouse. The Residences at Prince, once part of Old St. Patrick’s Cathedral Campus, is a NYC Individual Landmark and a Nationally Registered Historic Place. The design highlights the building's original features, blending new materials with historic elements to create unique, modern living spaces. The project features a multi-level inner courtyard with private and communal gardens, providing a serene oasis in the heart of the city. The combination of historic and contemporary design pursues a harmonious balance between past and present.

© Aaron Thompson
© Aaron Thompson
The exterior design maintains the Federal style's simplicity, while the inner courtyard façades are playful and irregular.
© Aaron Thompson
© Aaron Thompson
Spaces interlock with one another— providing for moment when modern and historic facades can meet
In order to create unity between the site’s different residences while connecting them with the facility’s history, fenestration was made to match the old windows, while glass brick was put in as to recall vintage masonry.

The H-shaped footprint was restored, with the western wing becoming a grand 5-story, 8,000 sq ft townhouse and the eastern wing housing seven condominium residences.

© Aaron Thompson
© Aaron Thompson
Historic north facade of the courtyard looking into a unit, displaying 200 years of intervention.
Within units there is a constant interplay of contemporary taste and historic texture.

Fine wide-plank floors and crown molding frame the classicism of the rooms, while old structural beams expose the building’s story and old-world craftsmanship.

First Floor Plan. © Marvel
© Aaron Thompson
© Daniel Byrne
The former schoolyard has been transformed into a multi-level courtyard with private and communal gardens.
© Aaron Thompson
© Daniel Byrne
A decision was made to peel back the layers and expose the building’s physicality, repairing but not clearing so as to celebrate its age and story.
Street-facing double-hung windows are paired with expansive glass-enclosed living spaces facing the courtyard.
© Aaron Thompson
The historic north wall with 200 years of alterations directly inspired the design of the modern concrete rainscreen.

Celebrating the building's rich history while offering luxurious, modern accommodations.

Marvel revitalized the landmarked 32 Prince Street in Nolita, NYC, converting the former convent and school into a private townhouse, eight condominium units, and a freestanding glass brick fronted townhouse. The Residences at Prince, once part of Old St. Patrick’s Cathedral Campus, is a NYC Individual Landmark and a Nationally Registered Historic Place. The design highlights the building's original features, blending new materials with historic elements to create unique, modern living spaces. The project features a multi-level inner courtyard with private and communal gardens, providing a serene oasis in the heart of the city. The combination of historic and contemporary design pursues a harmonious balance between past and present.

1303 Residences at Prince Street Aaron Thompson N59 medium
© Aaron Thompson
Blackened Steel Plate stair with treads repurposed from the existing timbers in the building, set against the 1826 masonry wall.
1303 Residences at Prince Street Aaron Thompson N73 medium
© Aaron Thompson
The exterior design maintains the Federal style's simplicity, while the inner courtyard façades are playful and irregular.
1303 Residences at Prince Street Aaron Thompson N64 medium
© Aaron Thompson
Spaces interlock with one another— providing for moment when modern and historic facades can meet
1303 Residences at Prince Street Aaron Thompson N74 medium
© Aaron Thompson
In order to create unity between the site’s different residences while connecting them with the facility’s history, fenestration was made to match the old windows, while glass brick was put in as to recall vintage masonry.

The H-shaped footprint was restored, with the western wing becoming a grand 5-story, 8,000 sq ft townhouse and the eastern wing housing seven condominium residences.

1303 Residences at Prince Street Aaron Thompson N68 medium
© Aaron Thompson
Historic north facade of the courtyard looking into a unit, displaying 200 years of intervention.
1303 Residences at Prince Street Aaron Thompson N52 medium
© Aaron Thompson
Within units there is a constant interplay of contemporary taste and historic texture.
1303 Residences at Prince Street Aaron Thompson N56 medium
© Aaron Thompson

Fine wide-plank floors and crown molding frame the classicism of the rooms, while old structural beams expose the building’s story and old-world craftsmanship.

1303 Residences at Prince Street N7 medium
First Floor Plan. © Marvel
1303 Residences at Prince Street Daniel Byrne N83 medium
© Daniel Byrne
The former schoolyard has been transformed into a multi-level courtyard with private and communal gardens.
1303 Residences at Prince Street Aaron Thompson N46 medium
© Aaron Thompson
A decision was made to peel back the layers and expose the building’s physicality, repairing but not clearing so as to celebrate its age and story.
1303 Residences at Prince Street Daniel Byrne N85 medium
© Daniel Byrne
Street-facing double-hung windows are paired with expansive glass-enclosed living spaces facing the courtyard.
1303 Residences at Prince Street Aaron Thompson N49 medium
© Aaron Thompson
The historic north wall with 200 years of alterations directly inspired the design of the modern concrete rainscreen.

Location

New York, NY

Client

34 Prince Equities LLC / Partnership between Hamlin Ventures and Time Equities

Typology

Size

35,000 SF

Marvel Design Team

Nebil Gokcebay, Clayton Fry, Elise Deachard, See Jia Ho, Angel Biele, Matt Peckham

Awards

NYCxDesign Award Honoree, Multifamily Category

Project Team

Higgins Quasebarth & Partners, LLC (Historic Preservation Consultant), Cosentini Associates (MEP Engineers), William Vitacco Associates, Ltd (Expeditor), Robert Silman Associates (Structural Engineer), GZA (Geotechnical/Civil/SOE Engineer), Derosier Engineering (Civil Engineer), Robert A. Hansen Associates (Acoustical Consultant), Lighting Workshop (Lighting Design), Acheson Doyle Partners Architects (Church Architect)